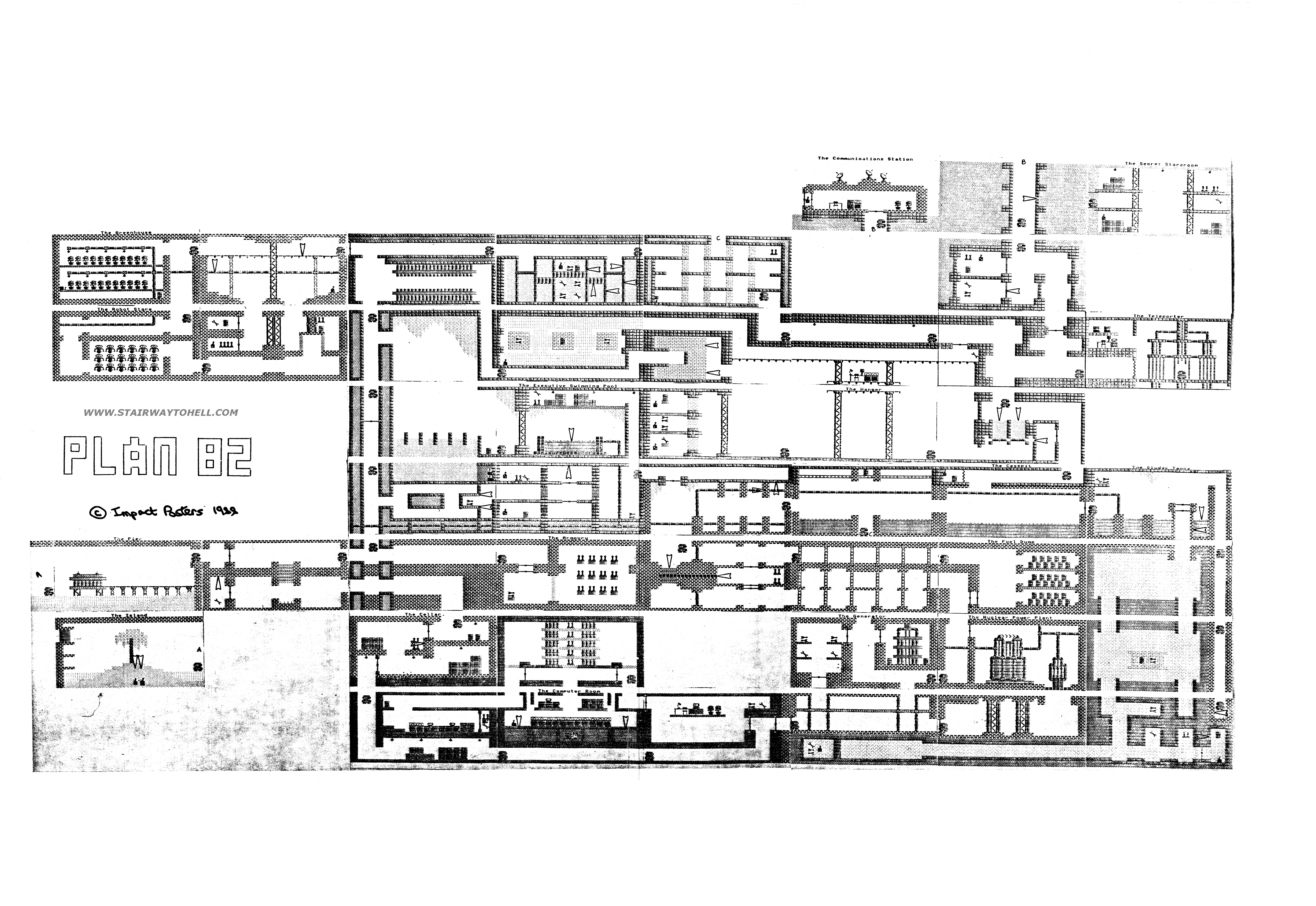
PLAN B2
Map, Impact Posters

File size: 1572k

Click to enlarge